Qc → Divers acier :
- Theo Bourgier
- 7 janv. 2024
- 1 min de lecture
Dernière mise à jour : 4 mars 2024
Mon activité sur ces produits acier:
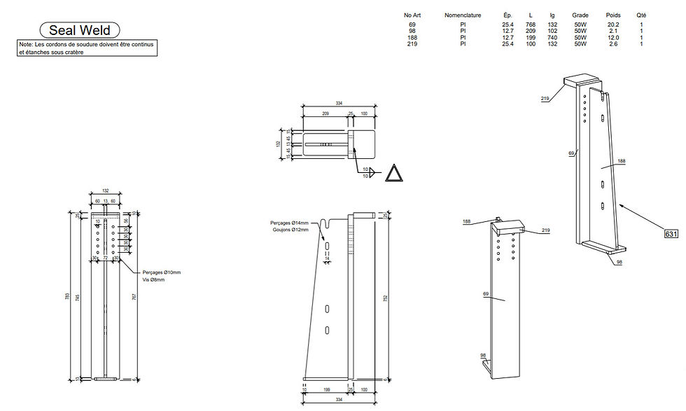
Conception & Modélisation
Mise en plan
Commande (découpe laser / plasma / plieuse)
Plan d'assemblage
Suivi fabrication
Gestion livraison pour finitions (Galvanisation / Primer / Peinture)















Commentaires